DOM KAMILEK TURBO 126 M2
Cena: 465 000 zł brutto
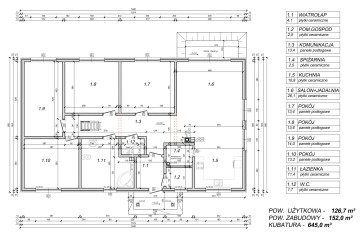
Pow. netto: 126,7 m2
Pow. użytkowa: 113,3 m2
Kubatura: 645,0 m3
Dom jednopoziomowy Kamilek Turbo to najnowszy projekt naszej firmy. Projekt wyróżnia przede wszystkim powierzchnia użytkowa 126 m2. Jest to obecnie największy parterowy dom w naszej ofercie. Podstawa domu wynosi 9,5 m x 16 m.
W Kamilku Turbo zaprojektowano 12 pomieszczeń:
- Wiatrołap
- Pomieszczenie gospodarcze
- Komunikację
- Spiżarnię
- Kuchnię
- Salon z jadalnią
- Pokój 1
- Pokój 2
- Pokój 3
- Pokój 4
- Łazienkę
- WC
W części dziennej znajduje się duży salon połączony z jadalnią oraz kuchnią. W salonie zmontowano 2 witryny o wymiarach 1,50 x 2,10 m oraz drzwi balkonowe HST o wymiarach 3,00 m x 2,10 m., dzięki czemu wnętrze jest jasne i przestronne.
W projekcie uwzględniono miejsce na spiżarnię, która zapewni dodatkowe miejsce do przechowywania. Projekt domu przypomina nowoczesną stodołę.
Jesteś zainteresowany naszą ofertą, napisz bądź zadzwoń do nas
- Tel. 501 544 170
- mail: domy@op.pl
Dom budujemy na wskazanej przez Klienta działce, na terenie całego kraju. Cena dotyczy stanu deweloperskiego, czyli domu przygotowanego do malowania ścian, ułożenia glazury, paneli podłogowych oraz montażu białej armatury. Domy budowane przez naszą firmę są solidne i trwałe na długie dziesiątki lat. Do budowy domu używamy wyłącznie materiałów najwyższej jakości, atestowanych. Natomiast drewno z certyfikatem C-24 sprowadzamy z krajów skandynawskich.
Koszt ogrzewania takiego domu jest niski, gdyż współczynnik przenikalności ciepła w takiej technologii jest dwa razy mniejszy niż w domach tradycyjnie murowanych. Dużym atutem budowy domów w technologii szkieletowej jest szybki etap jego wybudowania, a co za tym idzie szybsze jego wykończenie wewnętrzne, umeblowanie i przede wszystkim zamieszkanie w swoim wymarzonym domu. Na wszystkie prace wykonane przez nas udzielamy rękojmi.
Projekt Kamilek Turbo jest naszego autorstwa i powstał na bazie doświadczenia naszej firmy w dziedzinie budownictwa oraz sugestii ze strony Klientów.
Nasza firma pomaga również z załatwianiu kredytu na budowę domu (tel. do doradcy kredytowego 794-385-000).
Cena domu obejmuje :
- Przekazanie gotowego projektu Kamilek Turbo
- Dostarczenie niezbędnych materiałów do budowy domu
- Nadzór kierownika budowy nad całością prac
- Wykonanie fundamentu z wylewką
- Wykonanie konstrukcji szkieletowej domu wraz z więźbą dachową
- Wykonanie komina dymnego
- Pokrycie dachu blachodachówką wraz z okuciem
- Montaż systemu rynnowego
- Wykonanie elewacji zewnętrznej styropianem 10cm wraz z położeniem tynku akrylowego
- Wykonanie systemu wentylacyjnego
- Wykonanie systemu grzewczego wraz z montażem kotła c.o. oraz grzejników (oferta nie obejmuje zakupu pieca )
- Wykonanie instalacji wodno-kanalizacyjnej
- Wykonanie instalacji elektrycznej
- Wykonanie ocieplenia ścian wełną 15cm od środka oraz położenia płyt gipsowo-kartonowych wraz z ich szpachlowaniem
- Ocieplenie Stropu wełną 25 cm
- Montaż stolarki okiennej w pakiecie 3szybowym –kolor okien w standardzie biały(za dopłatą inny kolor)
- Montaż stolarki drzwiowej zewnętrznej
- Wykonanie wylewki zbrojonej wraz z ociepleniem styropianowym pod panele i płytki
- Wykonanie komina okładziną blacha T8
- Belki kwadratowe w tynku akrylowym
Do ceny standardowej domu istnieje możliwość doboru (zakupu) pakietu dodatkowych usług:
1. Okna PCV
* Okna w pakiecie trzy szybowym w kolorze białym – w cenie domu
* Okna w pakiecie trzy szybowym w kolorze jednostronnym – 1500 zł dopłaty do całego domu
* Okna w pakiecie trzy szybowym w kolorze dwustronnym – 3000 zł dopłaty do całego domu
2. Okna dachowe
*Okno dachowe w pakiecie trzy szybowym pokojowe – 2700 zł
*Okno dachowe w pakiecie trzy szybowym łazienkowe – 2900 zł
3. Rolety
*Rolety Elektryczne w całym domu – 13 000 zł
W przypadku niestandardowej specyfikacji okien cenę rolet ustalamy indywidualnie
– Nie zajmujemy się montażem rolet ręcznych
4. System ogrzewania
Piec Kamen Kompakt Lux 12 kw – 19 000 zł
Piec Kamen Perfekt Bio – 9000 zł
Pompa Ciepła – indywidualna wycena w zależności od modelu
Folie Grzewcze Red Snake – 8000 zł parter/ 9000 poddasze
Przy zakupie pieca we własnym zakresie odliczenie od ceny umowy 3000 zł
5. Ogrzewanie podłogowe
*Ogrzewanie podłogowe (cały parter ) 7000 zł
6. Styropian Elewacyjny Ryflowany
*10 cm -standard
*15 cm – 3000 zł
7.Instalacja Odgromowa
Kamilek Turbo – 7000 zł
8. Inne
Dodatkowy punkt wodno-kanalizacyjny 400 zł
Montaż stelaża WC 300 zł
Dodatkowy punkt elektryczny 150 zł
Rekuperacja – wycena indywidualna w zależności od projektu i układu pomieszczeń
Komin pod kominek – 2000 zł
Schody betonowe przed wejściem – 5000 zł
9. Zamiana wewnętrznej płyty osb z 10 mm na 18 mm
– 7500 zł
10. Ocieplenie dachu poddasza/strychu wełną 20 cm domu parterowego
– 13 000 zł
ZADASZENIA:
zadaszenie boczne: 12 000 zł
zadaszenie tarasu 8 000 zł
Zapraszamy do skorzystania z naszych działów
Stolarnia Inter Styl produkcja schodów wewnętrznych drewnianych tel. 794 725 000
Amira Meble Meble kuchenne i tapicerowane tel 793 298 000
Kredyty tel. 794 385 000
UWAGA!!! Cena podana jest ceną brutto do zapłaty z podatkiem VAT
UWAGA!!! Po Państwa stronie jest :
* uzyskanie pozwolenia na budowe domu z Biurem Projektowym z Państwa okolicy,
* geodeta, który wytyczy teren pod budowę domu.


















